Rijswijkseplein 786, Den Haag

Vraagprijs   € 125 p.m2.p.j  

Nieuw Download Brochure
reibestein bedrijfshuisvesting den haag

Omschrijving

Algemeen:

de Haagse Toren, in de volksmond beter bekend als Het Strijkijzer, is een torenflat in Den Haag aan het Rijswijkseplein met 42 verdiepingen en een hoogte van 132 meter. Het is het op drie na hoogste gebouw van Den Haag. Door de hoogte en de vorm van de bovenkant, is het gebouw gemakkelijk te herkennen in de skyline van Den Haag.

Architect Paul Bontenbal werd geïnspireerd door het Flatiron Building (1902) in New York City. In 2007 won het de Nieuwe Stad Prijs van Den Haag en de internationale gouden Emporis Skyscraper Award.

In het gebouw, gesitueerd aan het Rijswijkseplein, zijn de begane grond en 1e verdieping voor verhuur beschikbaar.
Deelverhuur per verdieping is bespreekbaar.

Locatie:

de Haagse Toren is gesitueerd aan de rand van het Nieuw Laakhavengebied direct naast het station Hollands Spoor en op 10 minuten lopen van het centrum. In de nabije omgeving is een grote diversiteit aan bedrijven gevestigd zoals o.a. Schindler Liften, Consumentenbond, Odido en Oogkliniek Den Haag. Ook heeft dit gebied zich steeds meer tot een kenniscentrum ontwikkeld, getuige de aanwezigheid van de Haagse Hogeschool en het Mondriaan College.

Bereikbaarheid:

door de ligging aan het Rijswijkseplein/Rijswijkseweg, één van de belangrijke verkeersaders van Den Haag, is de Haagse Toren met eigen vervoer goed te bereiken. De directe nabijheid van de Utrechtsebaan, met verbindingen naar Amsterdam (A4), Utrecht (A12) en Rotterdam (A13), zorgt voor een perfecte aansluiting op het rijkswegennet. Het gebouw ligt op 2 minuten loopafstand van NS Station Hollands Spoor met directe verbindingen naar Amsterdam en Rotterdam. Voor de ingang van het station zijn halteplaatsen voor de tramlijnen 1, 9, 11, 12, 15, 16, 17 en de buslijnen 22, 26 en 29.

VVO:

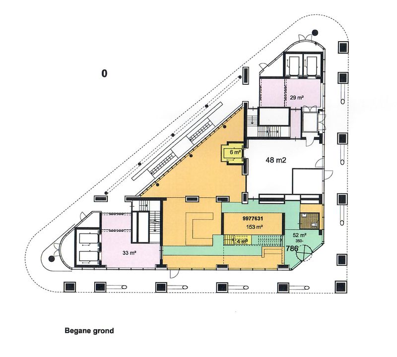
het Verhuurbaar Vloer Oppervlak is totaal 411,00 m2 kantoor-/praktijkruimte, gelegen op de begane grond en 1e verdieping. Deze ruimten zijn als volgt onderverdeeld:

begane grond 205,00 m2 entree, kantoorruimte;
1e verdieping 206,00 m2 kantoorruimte.

Deelverhuur per verdieping is bespreekbaar.

De oppervlakten zijn gemeten op basis van de NEN 2580 meetinstructie.

Bestemming:

onderhavig object valt binnen het bestemmingsplan Laakhavens. Binnen dit plan wordt de locatie aangeduid als: ‘gemengd-5’. Binnen deze bestemming zijn naast normaal kantoorgebruik de navolgende functies benoemd:

a. dienstverlening;
b. ambachtelijke bedrijven;
c. sociale voorzieningen;
d. culturele voorzieningen;
e. welzijnsvoorzieningen.

Energielabel:

A-label.

Parkeergelegenheid:

in de naastgelegen (openbare) parkeergarage zijn 4 parkeerplaatsen voor verhuur beschikbaar, waardoor er een parkeernorm van 1 op 50 m2 gehuurd oppervlak kan worden gerealiseerd.

Opleveringsniveau:

het interieur van het gehele object is in 2011 ontworpen door de Amsterdamse architect Studio Linse en is modern, trendy en industrieel.

Verhuur is inclusief:

- representatieve entree met receptie;
- liften;
- mechanische ventilatie + airco-units;
- aanwezig meubilair (optioneel);
- lichte of glazen scheidingswanden;
- ruime gangzones;
- wifi en bekabeld internet (optioneel).

Overname inrichtingselementen:

enkele inrichtingselementen van de huidige gebruiker zijn eventueel ter overname. Bij interesse zullen wij het contact met de huidige gebruiker van deze zaken tot stand brengen.

Huurvoorwaarden:

huurprijs kantoor:

€ 125, -- per m2 per jaar te vermeerderen met de servicekosten en de B.T.W.

huurprijs parkeren:

€ 177,50 per plaats per maand te vermeerderen met de B.T.W.

B.T.W.:

alle genoemde huurprijzen zijn exclusief B.T.W. en dienen derhalve met 21 % te worden vermeerderd.

huurprijsbetaling:

per maand vooruit middels een automatische overboeking.

huurtermijn:

5 jaar met verlengingen van telkenmale 5 jaar (opzegtermijn 12 maanden). Alle te sluiten huurovereenkomsten zullen worden gesynchroniseerd met de hoofdhuurovereenkomst met als eerste ijkpunt 31 december 2031.

huurprijsaanpassing:

jaarlijks, per 1 januari zal de huurprijs worden aangepast aan de stijging van het Consumenten Prijs Indexcijfer (CPI), reeks Alle Huishoudens (2015=100), zoals dit wordt gepubliceerd door het CBS.

servicekosten:

€ 55, -- per m² per jaar, te vermeerderen met B.T.W., op voorschotbasis en nacalculatie. Als door of vanwege opdrachtgever te verzorgen bijkomende leveringen en diensten komen partijen overeen dat opdrachtgever zorgdraagt voor:

a. gas- en elektraverbruik inclusief vastrecht (van het gehuurde, algemene ruimten en installaties);
b. waterverbruik inclusief vastrecht;
c. onderhoud installaties;
d. glasbewassing buitenzijde;
e. glasverzekering ten behoeve van glas in buitengevel.

huuringangsdatum:

zo spoedig mogelijk na wilsovereenstemming, doch aanvangende op de eerste van de maand volgend op de wilsovereenstemming.

waarborgsom:

bij ondertekening van de huurovereenkomst stelt huurder in handen van verhuurder een waarborgsom ter grootte van drie maanden huurverplichting inclusief servicekosten en een bedrag gelijk aan de toekomstig verschuldigde B.T.W. Over de waarborgsom wordt door verhuurder geen rente vergoedt.

N.B. afhankelijk van de gegoedheid huurder kan verhuurder ten aanzien van de zekerheidstelling aanvullende voorwaarden stellen.

huurovereenkomst:

indien partijen tot overeenstemming komen zullen de hoofd huurvoorwaarden worden vervat in een ROZ huurovereenkomst ex artikel 7:230a aangepast aan de eisen en wensen van de verhuurder.

voorbehoud verhuurder:

voor het aangaan van een huurovereenkomst maakt verhuurder het nadrukkelijk voorbehoud van het verkrijgen van een verhuurder conveniërend krediet informatierapport van het bedrijf van huurder.

Kenmerken

Vraagprijs
€ 125 p.m2.p.j
Wijk
Stationsbuurt
Locatie
in_residental_area
Postcode
2516 LX Den Haag
Type
Kantoorruimte
Bouwjaar
2007
Soort bouw
Bestaande bouw
Totaaloppervlakte
411m²
Verdiepingen
1
Oplevering
in overleg

Locatie

[ { "address": "Rijswijkseplein 786", "zipCode": "2516 LX", "city": "Den Haag", "lat": 52.0715787, "lng": 4.3241139 } ]
[{"featureType":"water","elementType":"geometry","stylers":[{"color":"#e9e9e9"},{"lightness":17}]},{"featureType":"landscape","elementType":"geometry","stylers":[{"color":"#f5f5f5"},{"lightness":20}]},{"featureType":"road.highway","elementType":"geometry.fill","stylers":[{"color":"#ffffff"},{"lightness":17}]},{"featureType":"road.highway","elementType":"geometry.stroke","stylers":[{"color":"#ffffff"},{"lightness":29},{"weight":0.2}]},{"featureType":"road.arterial","elementType":"geometry","stylers":[{"color":"#ffffff"},{"lightness":18}]},{"featureType":"road.local","elementType":"geometry","stylers":[{"color":"#ffffff"},{"lightness":16}]},{"featureType":"poi","elementType":"geometry","stylers":[{"color":"#f5f5f5"},{"lightness":21}]},{"featureType":"poi.park","elementType":"geometry","stylers":[{"color":"#dedede"},{"lightness":21}]},{"elementType":"labels.text.stroke","stylers":[{"visibility":"on"},{"color":"#ffffff"},{"lightness":16}]},{"elementType":"labels.text.fill","stylers":[{"sa turation":36},{"color":"#333333"},{"lightness":40}]},{"elementType":"labels.icon","stylers":[{"visibility":"off"}]},{"featureType":"transit","elementType":"geometry","stylers":[{"color":"#f2f2f2"},{"lightness":19}]},{"featureType":"administrative","elementType":"geometry.fill","stylers":[{"color":"#fefefe"},{"lightness":20}]},{"featureType":"administrative","elementType":"geometry.stroke","stylers":[{"color":"#fefefe"},{"lightness":17},{"weight":1.2}]}]

Documenten

Vragen of een bezichtiging plannen?

Neem contact met ons op via onderstaand formulier, of bel 070 - 331 97 99.

Uw bericht is naar ons verzonden. Wij nemen zo snel mogelijk contact met u op.

Sorry, we kunnen helaas niet met zekerheid vaststellen of je een mens of een geautomatiseerde bot/spammer bent. Hierdoor kunnen we het formulier dat je hebt ingevuld niet verzenden. Probeer het opnieuw of neem direct contact op met de makelaar via e-mail.

Er is iets mis gegaan met het versturen van het formulier.
Controleer of u alle velden (goed) heeft ingevoerd en probeer het nog een keer.

recaptcha
reCAPTCHA
PrivacyTerms